R72 Taglio termico

Tecnicamente viene definito "a taglio termico" un profilato metallico che, una volta impiegato nella costruzione di un infisso, presenti il lato rivolto all'interno nettamente diviso dal lato esposto all'esterno per impedire lo scambio termico.
Le due parti della sezione devono essere perciò separate da un materiale diverso, con bassi valori di conducibilità termica.

Il taglio termico del sistema R, realizzato con barrette in poliammide rinforzato, si colloca su bassi valori di trasmittanza termica, in linea con i sistemi di taglio termico più avanzati.

Per evitare slittamenti dei vari componenti del profilato a taglio termico è prescritta la pre-zigrinatura dei particolari di bloccaggio prima dell'operazione meccanica di accoppiamento.

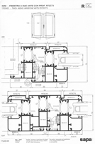
SPESSORE TELAIO FISSO 64 mm
SPESSORE TELAIO MOBILE 72 mm
INSERIMENTO VETRO DA 28 mm A 52 mm
BARRETTA IN POLIAMMIDE 28,6 mm